现在的楼市,还能有如此炸裂的红盘,简直刷新认知。
就在前晚,湘江金茂府盛大首开:114套大平层,套均总价约500-1000万,约300组认筹客户摇号抢房,1#3#栋首开售罄!

(开盘现场,图源:克而瑞)
各位,这可是总价约500-1000万/套的长沙真奢宅!居然近3个人来抢1套房!
湘江金茂府,到底凭什么?

(开盘现场,图源:克而瑞)

城市核芯资产,从不缺购买力
湘江金茂府,凭什么这么爆火?
关于湘江金茂府售罄的逻辑,并不复杂,因为它的很多价值直接明牌。
毕竟,在长沙市中心,它太过珍贵了!
首先,光是地段+江景,就足以脱颖而出。
我们相信但凡到过长沙,只要打开地图找到湘江金茂府,就能瞬间Get它的含金量。
甚至不用过多介绍:占位开福滨江的湘江金茂府,便利交通、醇熟商业、优质医疗、生态休闲等配套全部“看得见摸得着”,下楼即享城芯美好生活。(详情→金茂府3.0震撼面世!揽尽山水洲城...)

(区位示意图,仅供参考)
特别是在“回归主城”的价值趋势下,即使是改善圈层,也更愿意为看得见摸得着的城芯资源买单。
同时,自项目面世起,超绝江景就在社交网络迅速传播,成为很多人的梦中情房↓(部分低楼层房源江景视野受限,具体以实际交付为准)

(1#6F局部视角实景图,仅供参考)
不同于狭缝瞰江、有江无景,湘江金茂府将3000年长沙更精华的“黄金江岸”尽数收入囊中,揽尽山水洲城。
从项目西望:湘江奔涌、岳麓巍峨、橘洲静卧、主城&滨江繁华。这样的江景,才算真正的长沙江景。
对懂的人而言,光湘江金茂府窗外的这幅江景,就值几百个W,值得臻藏!
在长沙,这样的情绪价值几个盘能做到?谁看了不会冲动?

科技奢宅,为家庭健康保驾护航
从好房汇视角来看:高端客群,对金茂的“科技住宅”价值非常认可。
因为在长沙,像湘江金茂府这样的科技奢宅,能为家庭健康保驾护航的新房,目前没有第二家。
毕竟自2009年诞生起,金茂府就与“更重面子”传统奢宅不同,创新主打“科技赋能”,汇集绿金科技、五衡系统等众多“黑科技”,已进行3次产品迭代。

(示意图,以实际交付为准)
尤其是作为华中首座金茂府3.0,经过15年积淀、改进后的湘江金茂府,更是与众不同:
恒温,全年温暖如春
不用空调地暖,通过自建深埋地下超百米的地源热泵系统,就可以全年保持更舒适的体感温度。并利用“毛细管网辐射”黑科技,让各空间温度均衡。
无论寒冬酷暑,在湘江金茂府几乎都是温暖如春。

(示意图,以实际交付为准)


(示意图,以实际交付为准)

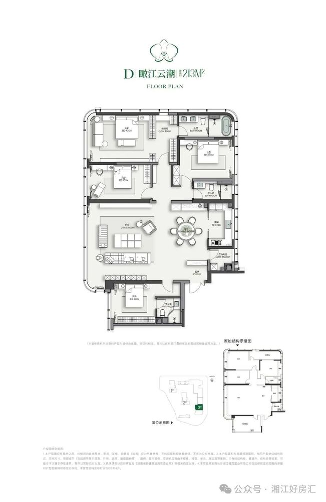
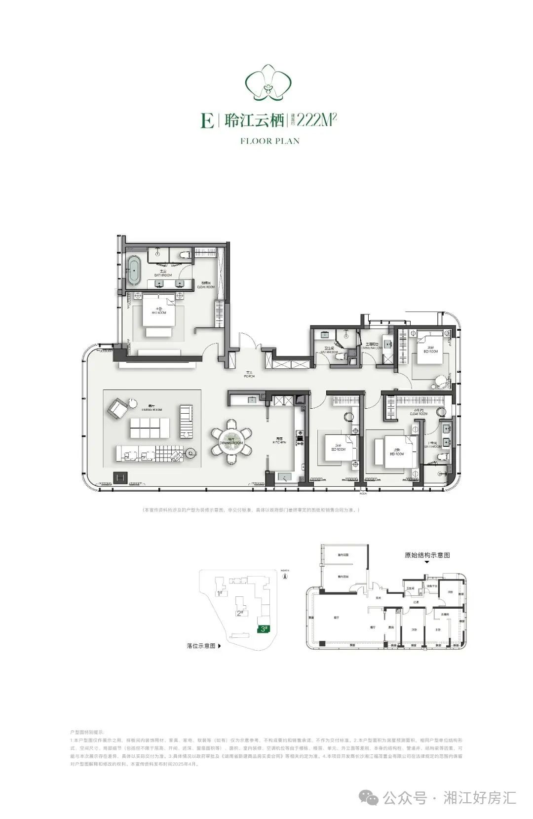
全景舱新规大平层,圈层纯粹




左右滑动查看更多户型图


(销售样板间实拍图,最终以交付为准)


(销售样板间实拍图,最终以交付为准)


(销售样板间实拍图,最终以交付为准)
外立面,以 "百舸争流" 为魂打造了出更具未来感的帆船造型,光幕界面规格拉满。

放弃"高密开发",选择 "品质塑造" 的做法,也获得长沙改善客群的高度认可。

最后,是尽致公区。






(湘江金茂府示范区实拍图,以最终交付为准)
当前,冰火两重天,已成为长沙楼市的真实写照。
但湘江金茂府1、3号栋的首开售罄,将为外界提供一个审视长沙楼市的新视角:
核芯地段的核芯资产,足以穿越周期,正被挑剔的高端客群抢着买!

随着1、3号栋的售罄,湘江金茂府仅剩2号栋56席待售。
在长沙,首开一次性全盘去化近70%,非常非常少见。按首开火爆程度预测。湘江金茂府大概率很快就会全部清盘。
好房汇建议:错过了当年的梅溪湖金茂府,错过了昨天首开的湘江金茂府,请盯紧湘江金茂府最后的2号栋!
最后,可以大胆猜测:湘江金茂府下批摇号,会几个人抢1套?

编辑/审核:马斯峤 终审:刘佰忠
内容说明:文章内容仅为楼市研判、市场研究或热点关注,部分房企或楼盘推荐信息仅供参考,不构成置业选购要约条件。相关楼盘规划、价格及配套变化或变更,以开发商案场公布信息为准!文章所涉户型面积数据均为建筑面积。文内所有图片信息,除标注相应来源的,均为相应楼盘提供或好房汇原创作品。
版权说明:好房汇原创内容,版权归属@湖南赋润科技&好房汇。如有疑议或不当信息,敬请致电好房汇服务热线0731-82725211。
